Svendsgade 10 i Aalborg
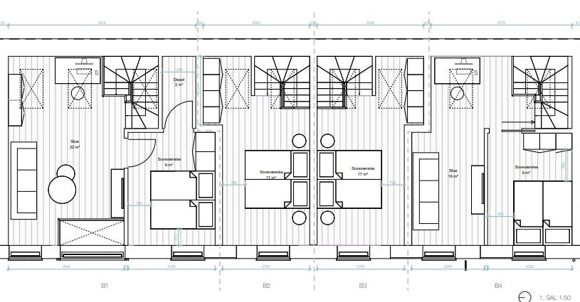
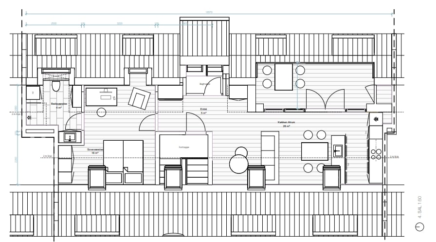
Kunden ønsker at renovere og ombygge tagetagen til en moderne taglejlighed samt omdanne baghuset til fire attraktive to-planslejligheder.
WP Rådgivende Ingeniører har stået for den konstruktive rådgivning af bygværket og har udarbejdet den fulde statiske dokumentation som grundlag for projektets gennemførelse.

Stueetagen 1. Sal

