Hostrupsgade 39
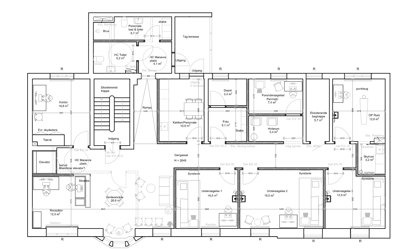
WP Rådgivende Ingeniør har udarbejdet konstruktionsprojekt, statiske beregninger og konstruktionstegninger til et renoveringsprojekt for Øjenlægeklinikken på Hostrupsgade 39 i Silkeborg.
WP Rådgivende Ingeniør har udarbejdet konstruktionsprojekt, statiske beregninger og konstruktionstegninger til et renoveringsprojekt for Øjenlægeklinikken på Hostrupsgade 39 i Silkeborg.